2b
NEWS
PROJECTS
COMPETITION
2025
2023
2021
2020
2019
2018
PASSERELLE A9 SION
MBC GARE DE BIèRE
LOGEMENTS PROTéGéS KöLLIKEN
PISCINE DE CAROUGE
NOUVEAU BâTIMENT SCOLAIRE PRêLES
HAUTE éCOLE DE SANTé GENèVE
2017
2016
2015
2014
2013
2012
2011
2010
2009
2008
2007
2005
2003
URBAN
PUBLIC SPACE
ARCHITECTURE
TRANSFORMATION
STRUCTURE
OUTPUTS
ACADEMICS
CONTACTS
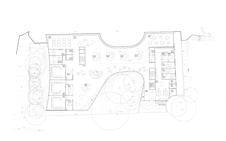
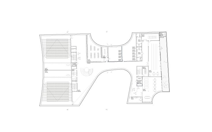
Haute école de santé
Genève
Maître de l’ouvrage
Canton de Genève
Team 2b
S.Bender
Ph.Béboux
M.Okumura
J. Chauvet
Ingénieur civil
B. Ott et C. Uldry Sàrl, Thônex
Architecte paysagiste
apaar, Geneve
Images 3d
Atelier Brunecky, Zurich
<<
<
idx
/
count
>