2b
NEWS
PROJECTS
COMPETITION
2025
2023
2021
2020
2019
2018
2017
2016
LA POSTE FRIBOURG
FONDATION CITé RADIEUSE ECHICHENS
GRANDS ESSERTS VEYRIER
PATINOIRE LHC LAUSANNE-MALLEY
LOGEMENTS ADRET PONT-ROUGE
ECOLE PRIMAIRE LA VIGNETTAZ FRIBOURG
CAMPUS SANTé BOURDONNETTE LAUSANNE
STADE COUBERTIN LAUSANNE
2015
2014
2013
2012
2011
2010
2009
2008
2007
2005
2003
URBAN
PUBLIC SPACE
ARCHITECTURE
TRANSFORMATION
STRUCTURE
OUTPUTS
ACADEMICS
CONTACTS
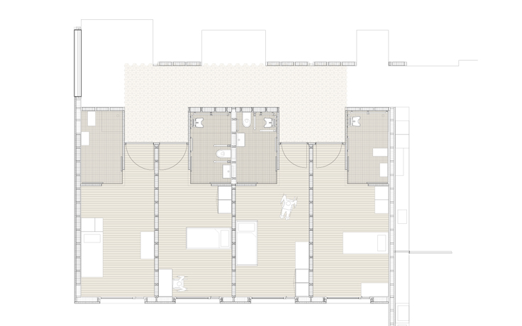
Fondation Cité Radieuse, Echichens
Maître d'ouvrage
Fondation Cité Radieuse Echichens
Team 2b
S.Bender
Ph.Béboux
B.Adam
M.Okumura
Ingénieur civil
Normal Office, Fribourg
Images
Marco de Francesco, Lausanne
<<
<
idx
/
count
>